Shopping habits in the UK keeps changing, and leaning more into online shopping. It endangers the future of the High Street. In 2019 in the first half of the year, reports said more than 2800 stores closed which meant more than 140,000 jobs were lost. Some of the reasons why people switch over to online shopping is the internet sales on the retail shops online, too many people in stores, shops closing when workers finish work, and customers find it too confusing to choose as there are a variety of clothes and things they need in general.

I began to question why Istiqlal street in Istanbul is so popular compared to the other high streets? What makes this street so habitable, what makes it different from Powis Street? Why do I want to go there?

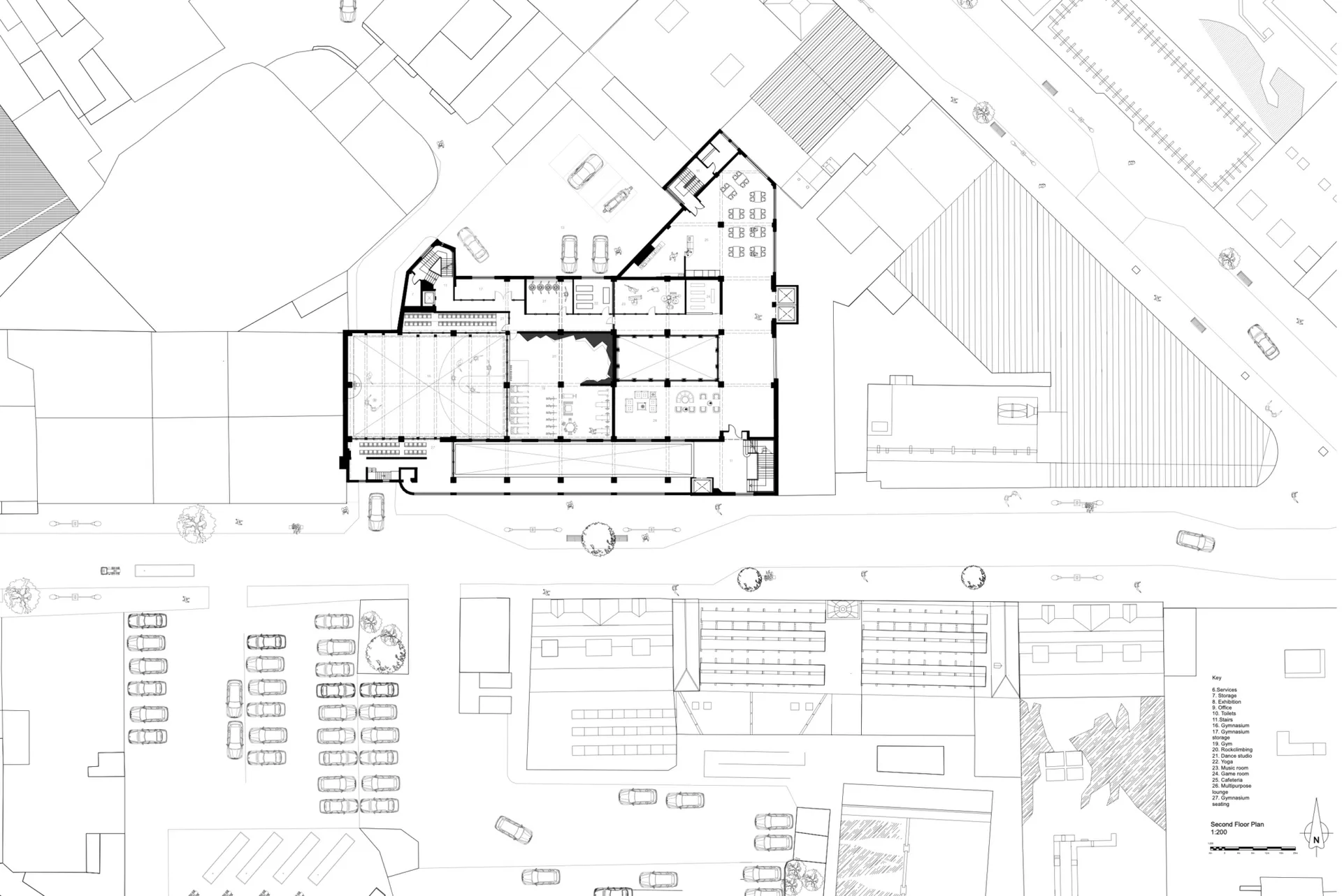
By understanding (what is there) making architectural interventions where they are needed. Cherishing the successful existing spaces and enhancing these by carefully editing the less success ones? While mapping, experiencing Istiqlal street, I found the variety of programs on site such as restaurants, food trucks, department stores, residents, hotels, cafes, street performers , art galleries, community centers and the list continues. For the high street to function as it should have a sense of character , rather than only retail the street should adapt to its society with different functions and for my design thesis I will be finding what my site needs to resurrect.