The work shown here has been developed as a response to a brief which asked to examine how new housing can support existing settlements and community’s. The project is located in Wokingham, adjacent to Reading, an area where 2500 new house will be built in the next few years.

The project consists of 47 houses set between the two villages of Three Mile Cross and Spencers Wood. The intent for this project was to both densify the villages and also to define the edges of them, leaving a public green space to separate the two.

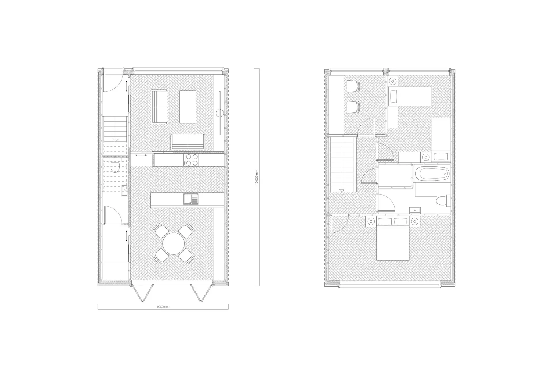
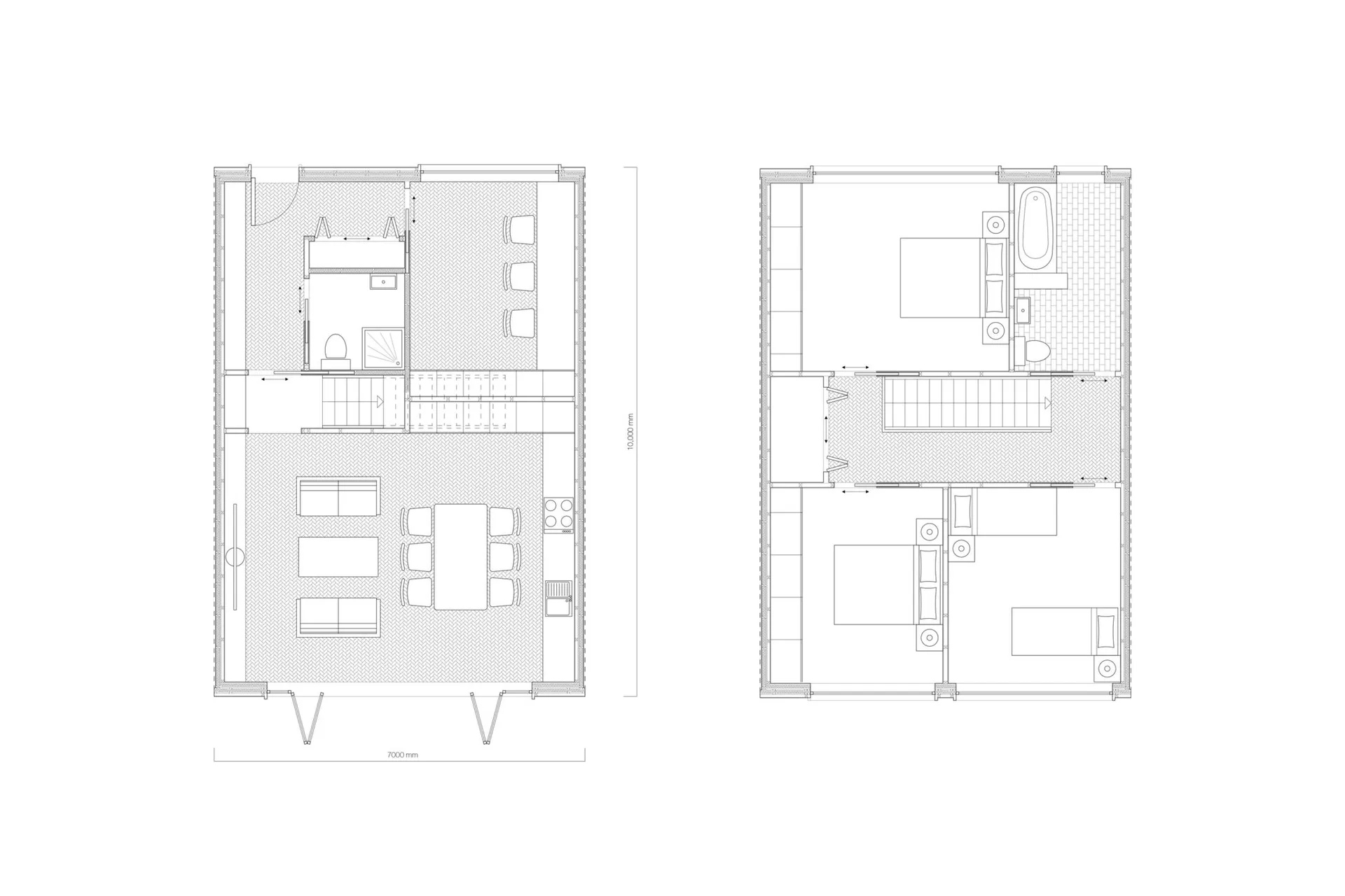
There are two house types in the project with 18 three bed houses and 29 two bed houses. The houses feature large kitchen/dining rooms as well as home offices, reflecting the changes that the pandemic has had on people’s needs in houses. To go with the houses a covered pedestrian walkway runs through the site, integrating the two existing villages and the new development.

This work built on earlier briefs which included detailed precedent studies of timber architecture, the development of new settlements and the design of a single plot house based on our own lived definitions of what makes a home.