The Art Centre in Bethnal Green is located between the railway viaduct and the Victoria & Albert Museum of Childhood.

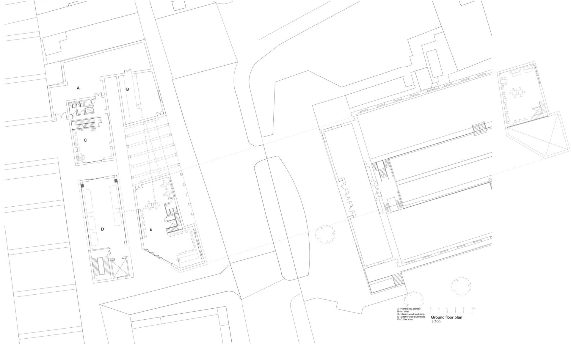
Creating an intimate cultural building that re-establishes a small scale public space to create a “Good City”. Designing a building that repairs the city fabric created by the remnants of small scale ad-hoc manufacturing buildings. My proposal is a workshop sawtooth building with another building in front which has a cafe, art shop and collonade. The building is designed as a narrative sequence, where each place guides you to another. The colonnade in between both shops generates an entry sequence for people to go through, which makes it a communal space. The colonnade is used as an intimate public space where people use to enter the building, sit on the concrete plinths or have a walk. There is a concrete tab that moves along the building and this idea is generated from the tabs that shift along the site. The red color of the cafe is derived from the V&A museum whereas the facade of the art shop is influenced by the nearby pub. To use surrounding context as a reference creates a building that connects to the spaces which all in all fabricates a good city.

My proposal is derived as both public and private, housing both aspects to create a comfortable environment for all. My hope was to create a building that establishes a small scale public route as well as developing an intimate space against the existing urban character. The city is losing the liveliness and diversity within each site, thus my aim was to replenish that aspect.

A mixed-use building that integrates the culture and heritage back to the city to create a diverse place that replenishes the city fabric. A place that also promotes art and gives artists a place to be.