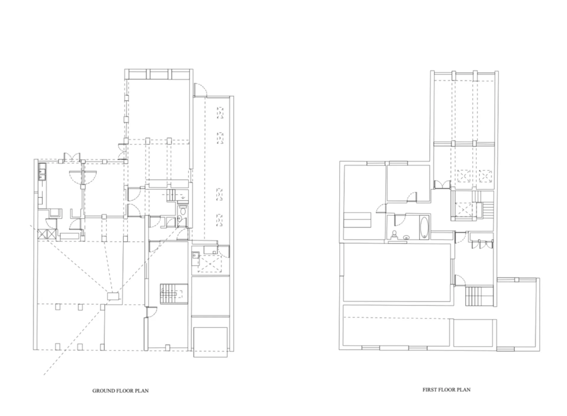
My third-year project in Whitechapel, London, aimed to build a space that could be both private and public. This area has been around since the mid-sixteenth century, and it was named after a brick development that occurred in the early eighteenth century. During World War II, much of Whitechapel’s Osborn Street was demolished. Considering, the increasing number of youths, dependent children in 40% of households and old aged people in the Whitechapel area ; I wanted to design a library / study space which includes a children space, a cafe and a roof- top cafe within the space. This space could be both public when accessing a cafe and intimate when it comes to the study spaces and library on the floors above. This could also help in bringing different communities together which in turn helps in enabling the public life. The interior of this interior has clt wall which has an exposed texture in order to build an inviting space while reducing the construction time and carbon emissions.

“Simplicity is the ultimate sophistication.” – Da Vinci