In response to the current climate crisis and virus pandemic, the focus for the studio was to create a community-building that had flexible spaces that could adapt to a variety of uses. The examples we were given were; education, temporary housing, temporary hospital live shows, event space, temporary business space, polling station.

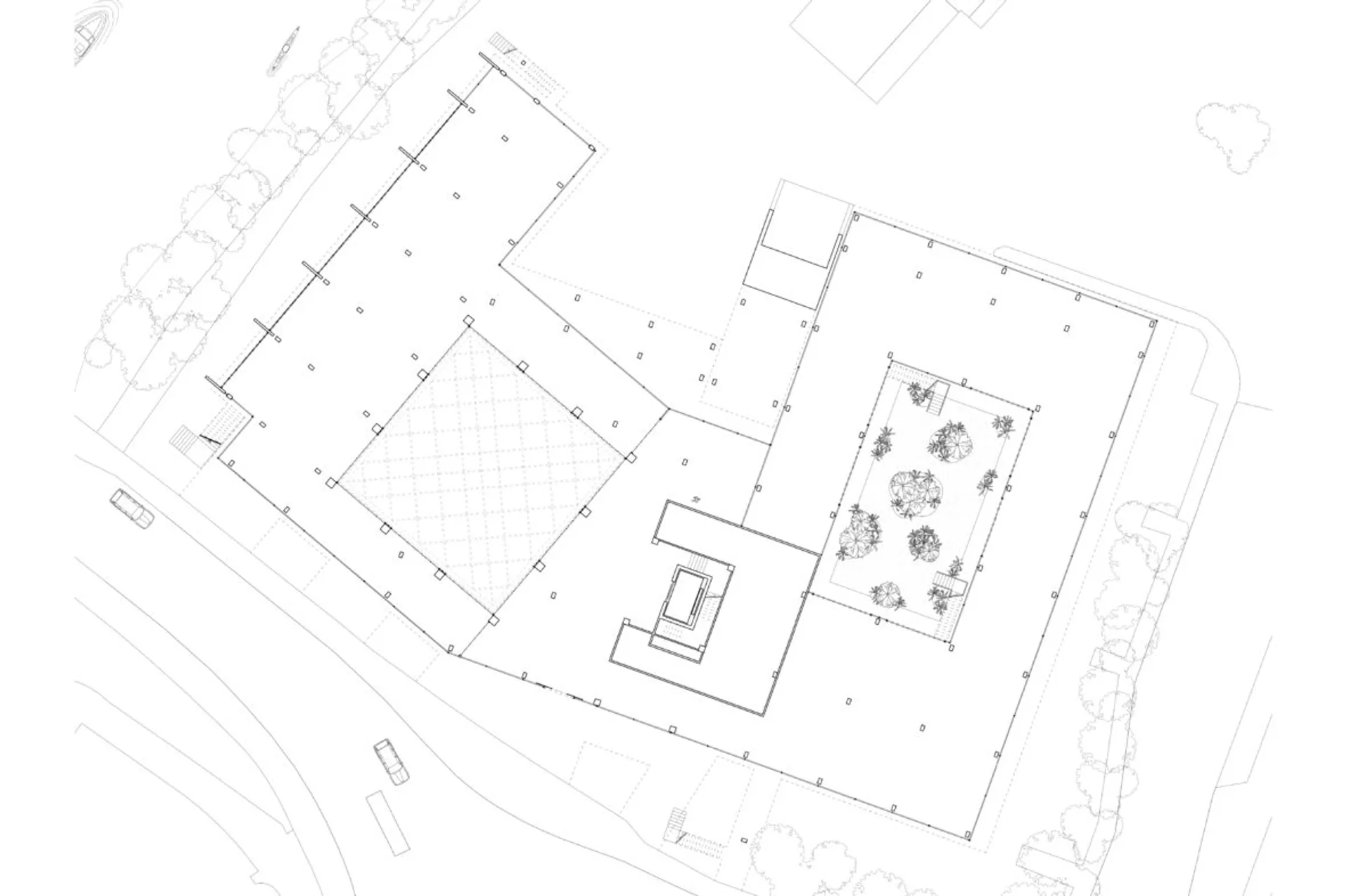
Located in Staines, west London, my project retains and transforms an existing car park close to the river Thames. By re-using the existing car park demolition is avoided and the embodied energy in the existing building retained. At the ground floor, the car park is enclosed to create internal space. Two holes are cut into the carpark, one left open to create a courtyard and the other capped with a tower, creating a positive and a negative along the horizontal plane.

The tower is a timber diagrid exoskeleton supporting timber floor plates and enclosed by a glazed curtain wall system. The floor plates of the tower are free of columns and a second tower contains circulation and services with walkways between the two.

The interior of the former car park is divided into 3 zones. The north end which surrounds the courtyard is defined by the grid of the columns which support the car park. The south side addresses the river edge and can be one or two large rooms. The double-height room below the tower can be closed to create an auditorium-like room or left open as a type of public space. The roof of the car park then becomes a garden.