How can the architecture of a historic rural landscape be developed to form its own architectural identity and values whilst still remaining true to the roots of its historic environmental and socio-economic context? Combined with the continued outlook of today, towards solutions for sustainability or at least understanding the impact of our carbon footprint. Can using traditional methods and rural strategies provide a solution to these issues and be applied on a wider scale?

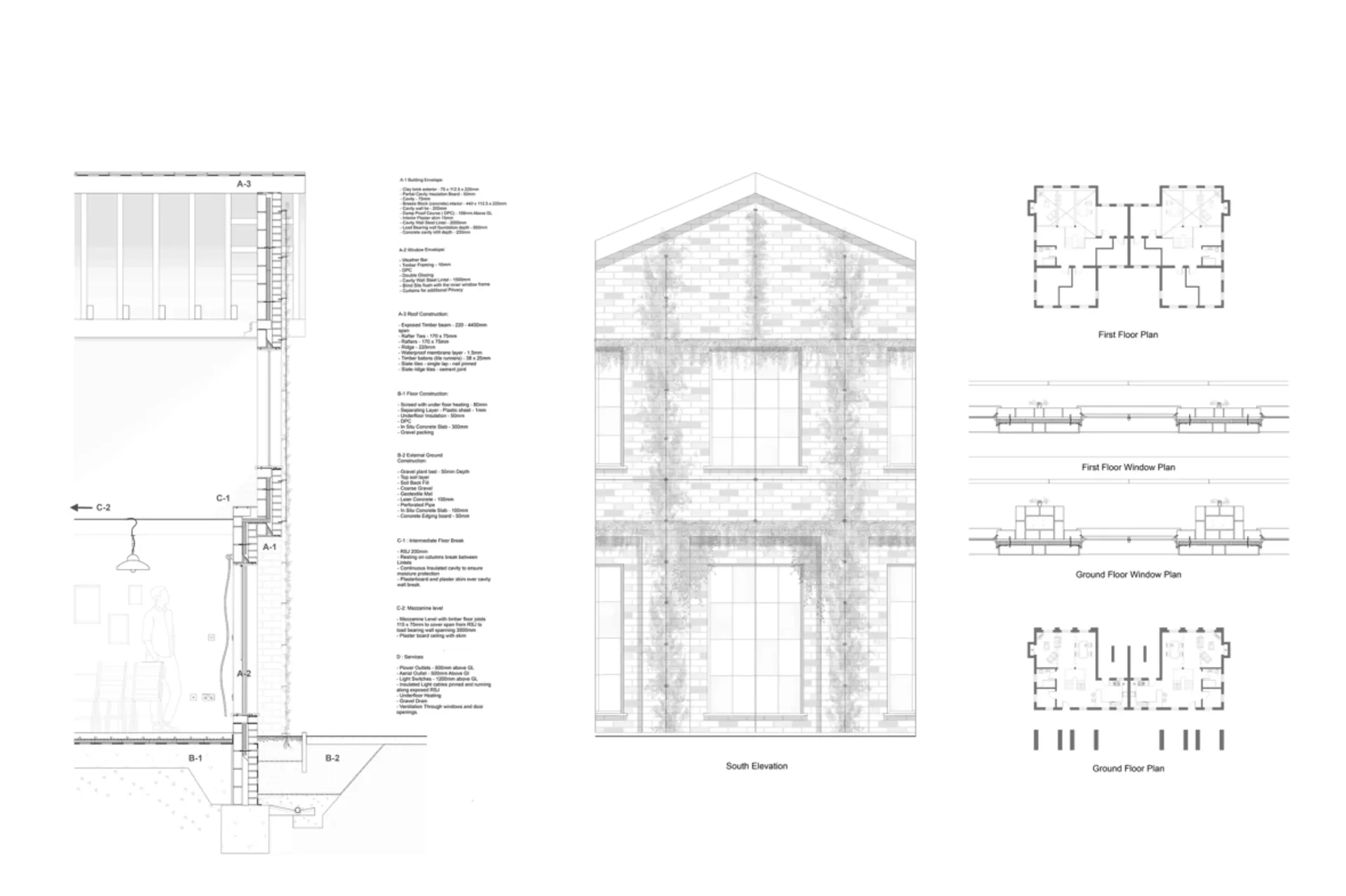
Understanding the importance of farmsteads and micro communities, is there a way to encourage the values of a self-sufficient community whilst expanding on the existing architecture of a site. Focusing on the reuse and re-purpose of structures and the language they create is an appropriate focus, for the dilapidated industrial site in Mucking. Alongside the aim of producing a viable settlement.

The programme for this settlement is brewing, which is a familiar programme in historic rural villages where beer was safer to drink than water. The identity and history of Mucking being used as a gravel quarry and then landfill is representative of an industrial community and the presence of a brewing settlement which utilises a bold architectural expression that resonates with its surroundings, should only emphasise the history of the surrounding context. Whilst also, providing local economic growth reflecting the importance of inns and taverns in historic settlements.

‘If architecture is to flourish and progress in an age when change is constant and development rapid and relentless, it must, with renewed vigour, use society as a partner in the creative process. Only then can the primary unchanging function of architecture be achieved : to provide decent surroundings for people and help them to a wider vision of life.’  – Denys Lasdun

The research and understanding of sustainable solutions to water recycling and growing methods are just some of many resolutions to the carbon footprint of our buildings and projects and that over time by engaging more with these elements we can create successful architecture that benefits both the user and the environment.

Group Works