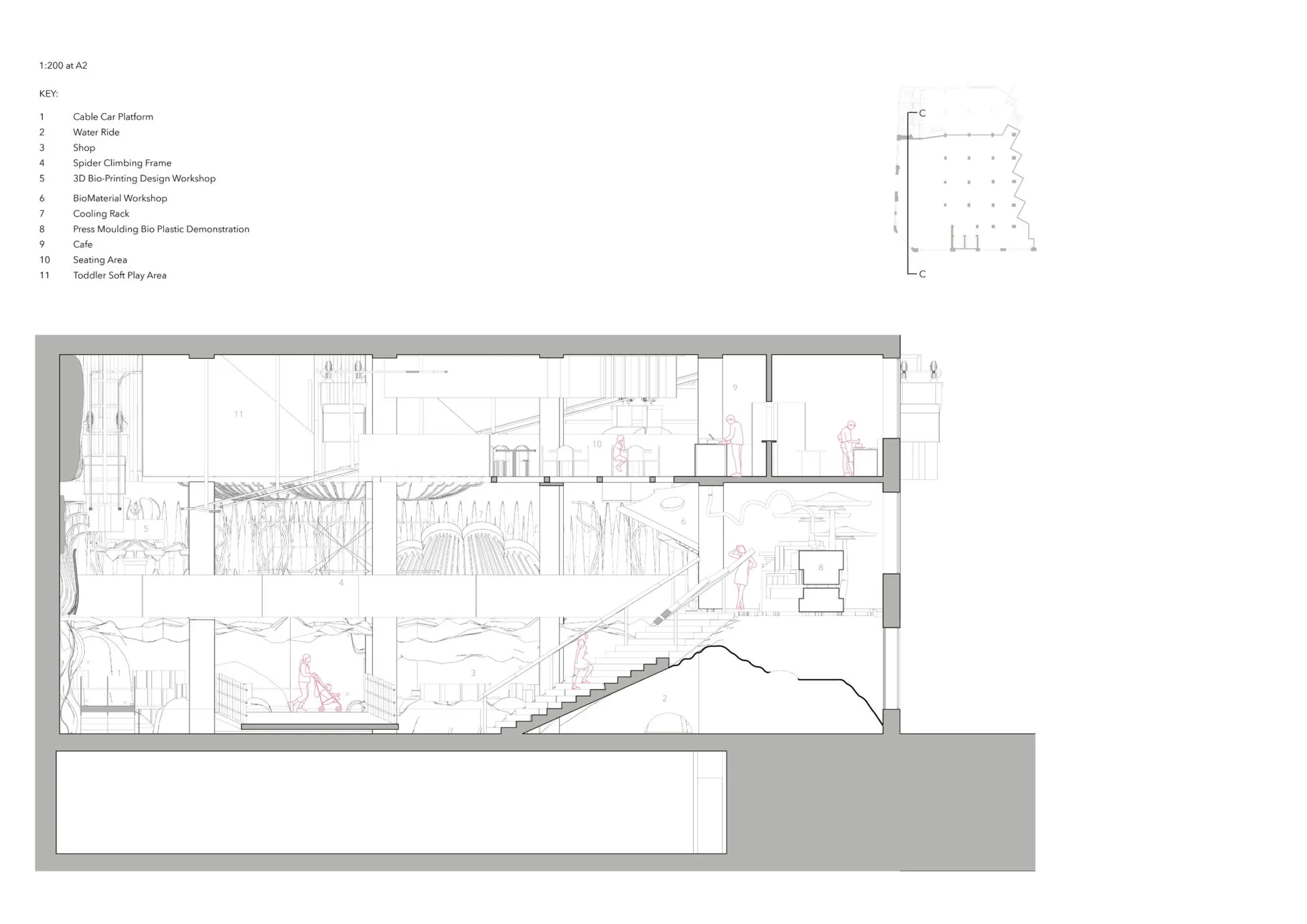
Creating an escapist experience from the reality of Shoreditch, with a firm grasp in circular economy, the LEGO-verse aims to connect, educate and entertain all walks of life, regardless of whether they have experienced the brand previously or not. The space encompasses the history of Lego, while also proposing what Lego could become. As well as the original products sold by Lego, customers will be able to experience new cutting-edge workshops to create their own bioplastic product. Through demonstration and unique interactive experiences, the LEGO-verse is the first Flagship of its kind, providing more connection and interaction then can be achieved online, benefiting children and adults alike. Dividing the spaces into levels of the natural world allows customers to walk into a whole new realm, and by making purchases, they collect tokens of the adventure that they have had, and will remember.  

Sustainability focused workshops are connected by the cable car rollercoaster travelling throughout the flagship store plus offering a unique view of Shoreditch, whilst the water ride exhibits LEGO’s history and archives. In one, LEGO presents the past, the present, and the future.