It has become more apparent that many once innovative buildings are being forgotten by the public. The aim of the proposal is to draw the public back to these kinds of spaces in a way that can excite and interest them for many years to come. The concept is to create a mixed used building which is flexible and accommodates the needs of multiple users.

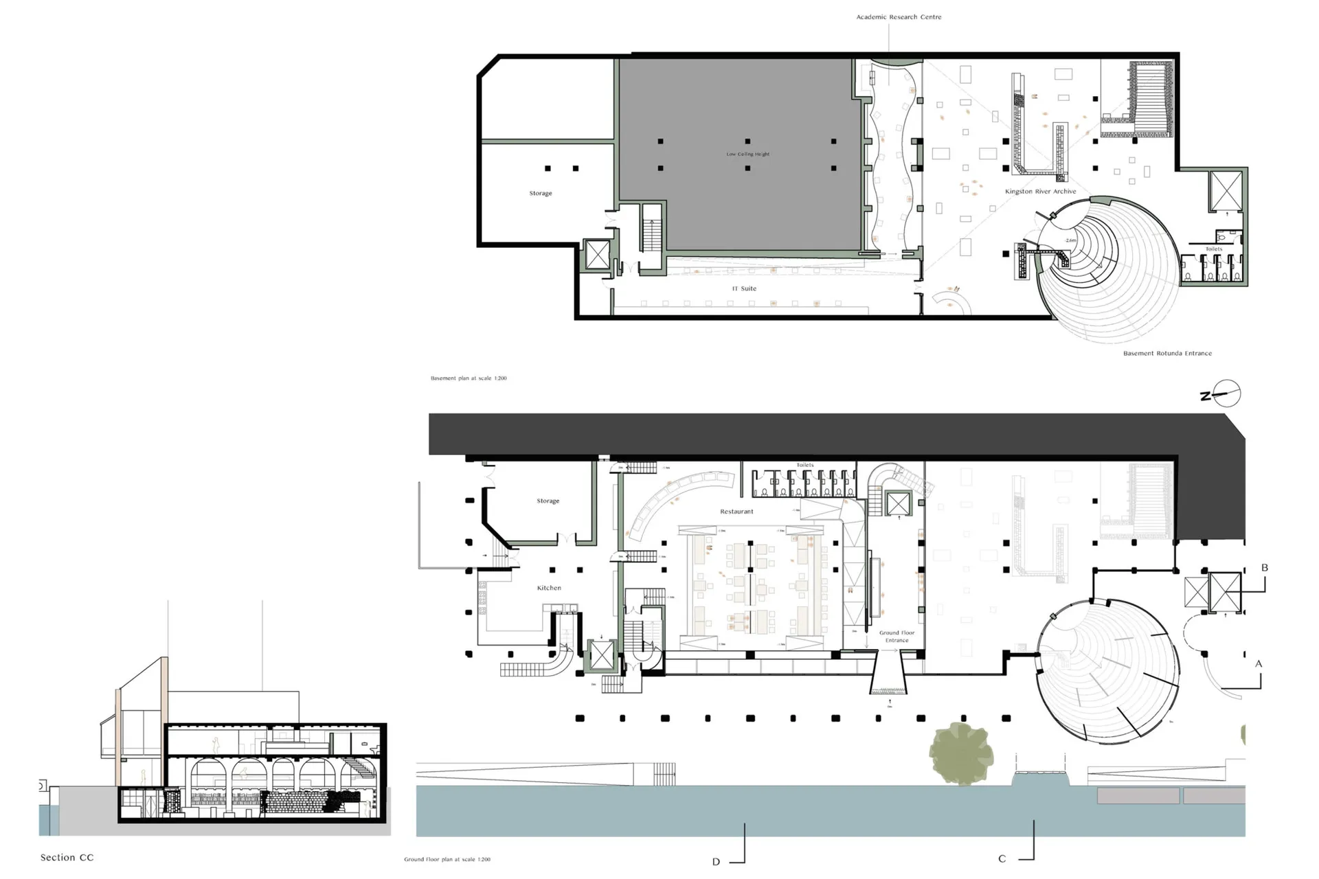
The presence of the river next to the existing building allows for its sense of movement to be incorporated within the design. Drawing upon this, the proposal is split over three floors to help move the users through the building. In the basement, the new sunken rotunda entrance guides users into a public archive about Kingston’s history with the river. There will then be access to an IT suite and academic research library where users can gain further knowledge on a plethora of subjects including the past, present and future of market towns. This space will be accessible while the archive is open. 

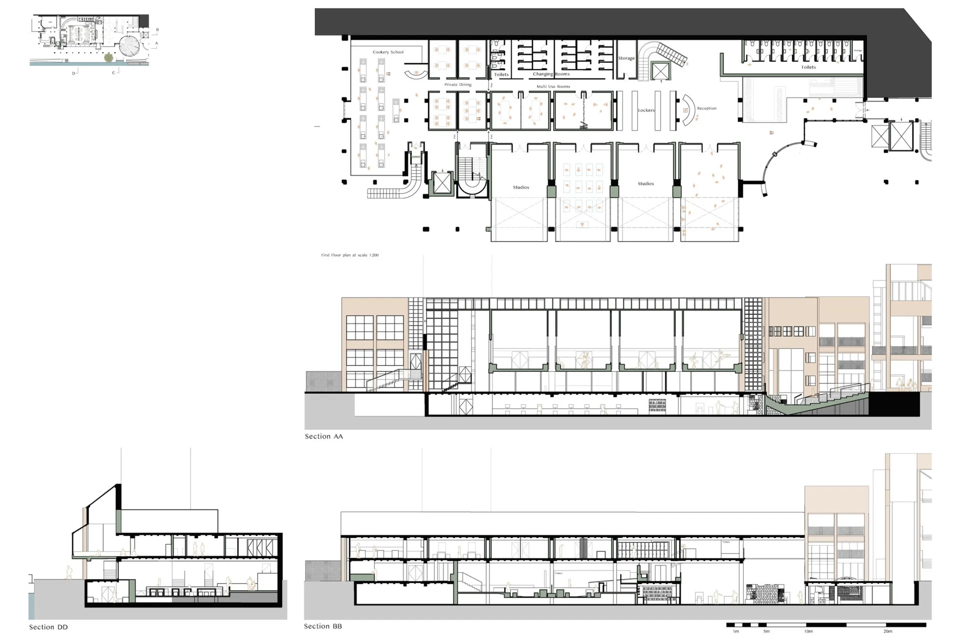
The entrance on the ground floor opens onto a platform that leads up to the first floor or into the restaurant that provides meals throughout the day for the community, created in the kitchen next to it. Working their way up to the first floor, users can access rentable large and airy studios spaces for a range of dance and movement-focused classes for the community. The multi-function rooms on this floor are also treated the same way but are for less active uses, such as music lessons. Alternatively, they can also be used for private dining by the cookery school which is located on the same floor. The cookery school will run different classes throughout the day in its own dedicated space and serve food to customers in the allocated private rooms.

Overall, this proposal is about positively impacting existing environments and communities in many different ways – through adaptive reuse design – starting with the mind (knowledge), the stomach (food), and finally the body (movement), facilitating unique and creative experiences for all.

The Buzz – This proposal is about positively impacting existing environments and communities through adaptive reuse design. Starting with the mind (knowledge), the stomach (food), and finally the body (movement), it facilitates creative experiences for all, in unique, multi-functional spaces, drawing the public back to the site.