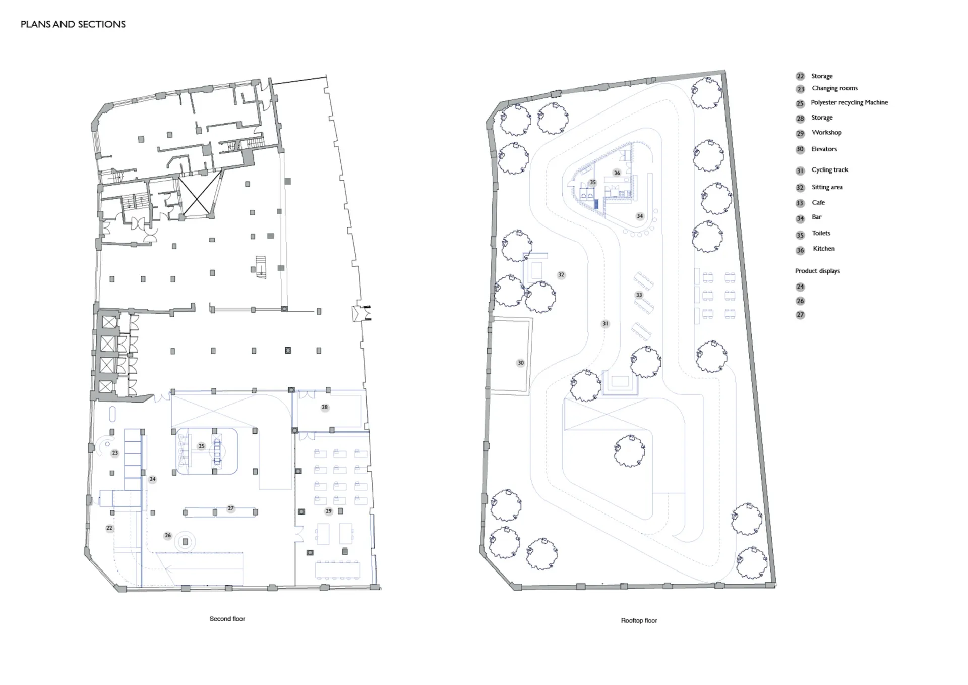
I am excited to present a  flagship store for Rapha, a cycling apparel brand for absolute beginners to WorldTour professionals. In my design, I intend to bring people closer to cycling by proposing various hobby-related activities and educate shoppers on sustainability issues of the textile sector through Repairs and Recycling. The site is a former Lipton Tea factory, called Tea Building. I decided to use the opportunities of the existing building to my advantage. Located on the corner of Shoreditch High Street, it has entrances from Bethnal Green and Red church streets, with a long corridor connecting two. From here it was decided to create a cycle thru lane that laid the foundation for developing this scheme for two types of users: cyclists and pedestrians. As the cycling lane turns inside the retail area it transforms into a ramp. A key design element of this project. As the ramp goes up, it allows extra space on the side to accommodate pedestrian shoppers. Enclosed in glass as it rises from one floor to another, it creates an exciting intervention through the whole building. From the ground floor, there are two distinctive circulation routes for cyclists and pedestrians, as they enjoy the same activities. Two groups of users meet at the ground floor, which accommodates a polyester recycling machine repairs station where people can fix their damaged garments, a takeaway coffee point, and an electricity-generating attraction where shoppers can compete who is the fastest cycler. Just like the cycling ramp, the polyester recycling machine spans across other floors. Display areas continue to the third floor where customers can find a sewing workshop for making their own garments and changing rooms. Although the shopping floor area stops at this floor cycling ramp continues all the way to the rooftop where visitors can find a garden along with a cafe.

This is an interior design project for an apparel flagship store that goes beyond the sole purpose of retail. It serves as an exciting place for shoppers to visit as it accommodates several uses as well as educating the public on circular economy and sustainability in the textile sector.