Hotel (Home Away from Home) 

We in Studio 2.5 probed the patterns of human dwelling by juxtaposing the idea of tourism and the global pandemic, rescuing the historic notion of the hotel as the place for experimentation. 

We began by looking at the history of tourism and travel, recognising the ever-changing dynamics (religious, commercial, cultural, leisure[…]) and speculating on the possible future scenarios. A first insight was put around single places of accommodation in five climatic conditions (climate as context), interested in self-sustaining refuges in remote conditions. How do the elements of dwelling take form in such an autonomous situation? Away from urban references, how do the atmospheric conditions inform the idea of building fabric? 

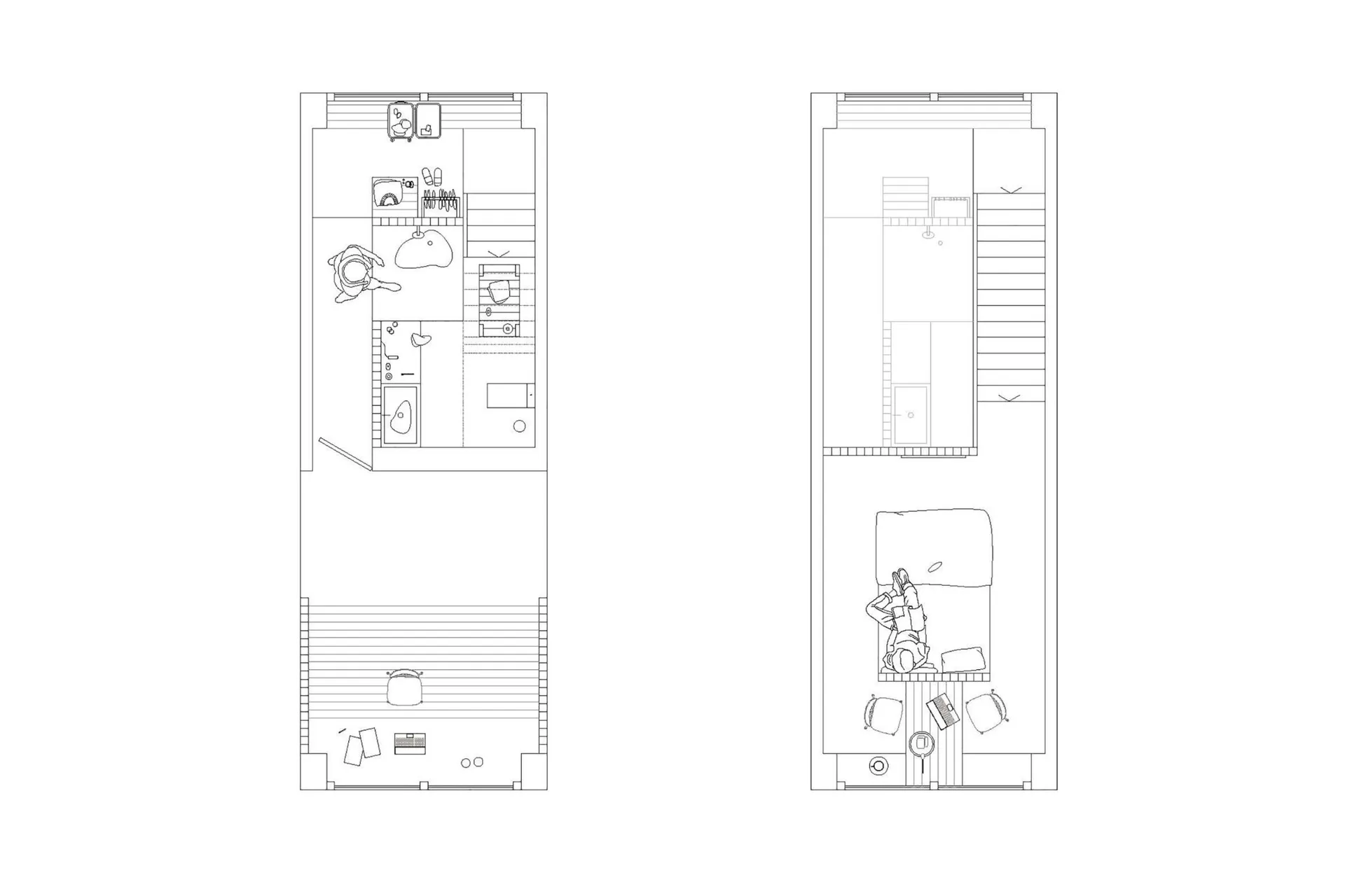
The focus then shifted to investigating the opposite phenomenon: dwelling in a global travel hub. Almost in tandem with the public announcement of the Covid hotels, the Studio investigated typological and programmatic patterns for airside spaces for temporary dwelling. We fragmented and reassembled the pieces –both obsolete and perduring– traditionally related to a hotel, and tested them against the current condition. Where and how do we meet, eat, work (and work out) and a new balance between the private and the public. A Non-place by excellence, these contingency dwellings under the guise of the hotel require new spatial arrangements that hopefully will outlive their very cause. 

Students
John Doorly, Sarah Tohma, Amir Osezay, Callum-Billy O’Driscoll, Mariana Jerez, Vicky Margaroni, Milena Bartasevica, Erin Finnerty, Isabelle Middleton, Keir Booton, Daanyaal Ali, Azsvina Ragunathan, Paul Gurung, Abdul Rob Miah, Numan Hummayun, Mohammed Alam, Sajeer Ahmed. Isabella Loaiza Cabrera, Haorong Qui, Bradley Terry, Irene Soetanto, Abby Long 

Studio Tutors
Diego Calderon, Dario Franchini and Paco Esteras de las Heras