Continuing from last year, Studio 2.2 set out to investigate a range of precedents from the global south and north with a focus on the African compound house as an architectural typology. The global pandemic, the Black Lives Matter movement and the urgency of climate change profoundly influenced the studio’s methodology – students were encouraged to attend to their everyday experiences, memories and individual cultural heritage, exploring relationships between a diversity of cultural attitudes and the architectural forms to which they could relate. Proposals addressed the theme of community through an exploration of the often-overlapping programmes of dwelling, learning and working.

In addition to investigating the compound house’s cross-cultural relationships with such typologies as the courtyard, piazza and quadrangle, the studio explored how the compound space manifests at different scales. From the urban form of a housing complex to a multi-generational dwelling’s evocation of a compound in miniature, to the arrangement of the kitchen as a dwelling’s social epicentre, students came to see architecture not only as a means of expression in and of itself, but as a means of fostering communality across different social spheres. From individuals to families, neighbourhoods and communities, if there is a language of architecture, it is a language spoken through social encounter and exchange.

Students
Sidar Kucukteke, Waleed Serafi, Joanna Banas, Marwa Sultana, Rehab Rehan, Rhianna Yawson, Cem Gediz, Miriam Hagos, Erene Hanna, Chelsea Richards, Fatma Zeidan, Diana Pivazi, Brigith Perez Calatayud, Rhyes Williams, Katrina Ly, Kelly Yamba, Daria Dragos, Jahada Akther, Acia Siteri, Mariam Behbehani, Shazil Ahmed

Studio tutors
Nana Biamah-Ofosu & Matthew Blunderfield in collaboration with Bushra Mohamed

 

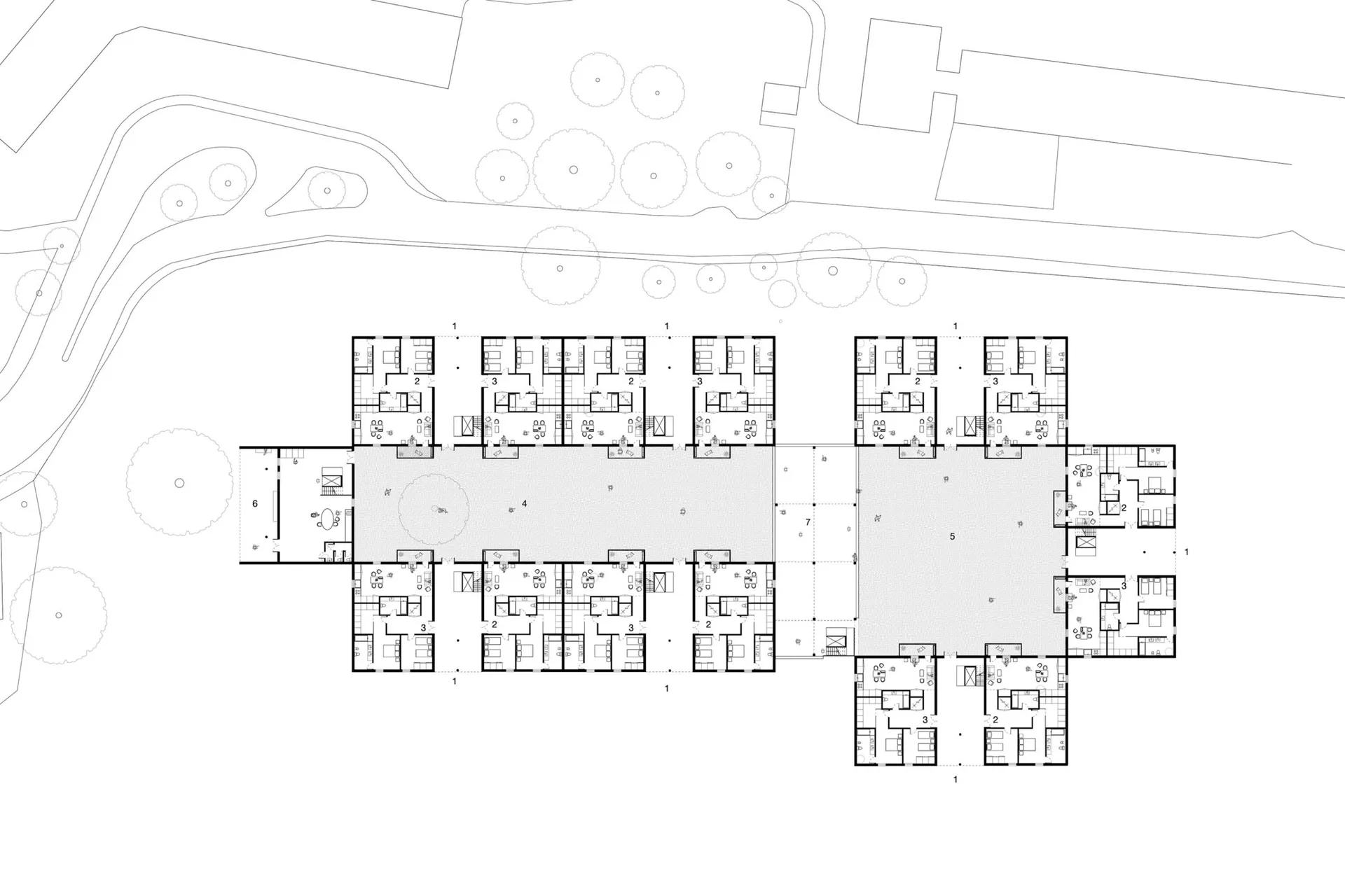
A compound of residential buildings forms a semi-enclosed courtyard surrounded by a covered passage and layer of private verandas. The layout of each dwelling creates a variety of internal and external spaces across different levels, further enhancing this sense of spatial layering within the scale of the dwelling itself.